바로가기 메뉴
본문 바로가기
주메뉴 바로가기

SITEMAP

온음공동체주택

#인증통과

"반음으로 살던 이들이 한데 모여 온음을 만들어가는 힐링 빌리지"

공동체주택에 산다는 것은 뜻이 맞아야 한다는 의미이기도 하다. 추구하는 것이 너무 다르면 공동체로 지속 가능하기 어려울 수 밖에 없다. 성미산 마을에 자리 잡은 온음 공동체주택은 힐링 빌리지를 만들고 싶다는 꿈과 일상 속 작은 낭만들을 기대하는 7가구가 모여 현실 속에서 공동의 꿈과 기대를 만들어 나가는 중이다.

공동체주택 사는 이야기 - 세번째 이야기

  • 온음공동체주택 외부 전경 사진1
  • 온음공동체주택 외부 전경 사진2

상세소개

  • 온음공동체주택_상세소개
    • 주소 : 서울 마포구 성미산로5안길 15 온음공동체주택

      입주대상 : 제한없음

      주거형태 : 다세대주택

    • 면적 : 전용 641.28m² / 공용 70.31m²

      총 주거인원(총 호 / 총 실) : 총 4명 / 총 7호 / 총 7실

      주택유형 : 투룸

    • 전세 : 400,000,000원

      홈페이지 :

  • 거실

    모임, 회의, 행사, 등 다양한 활동 가능

  • 온음공동체주택_상세소개_1
  • 온음공동체주택_상세소개_2
  • 주방

    실용성 갖춘 일자형 주방

  • 악기연주실

    방음시설 갖춘 악기연습실

  • 온음공동체주택_상세소개_3

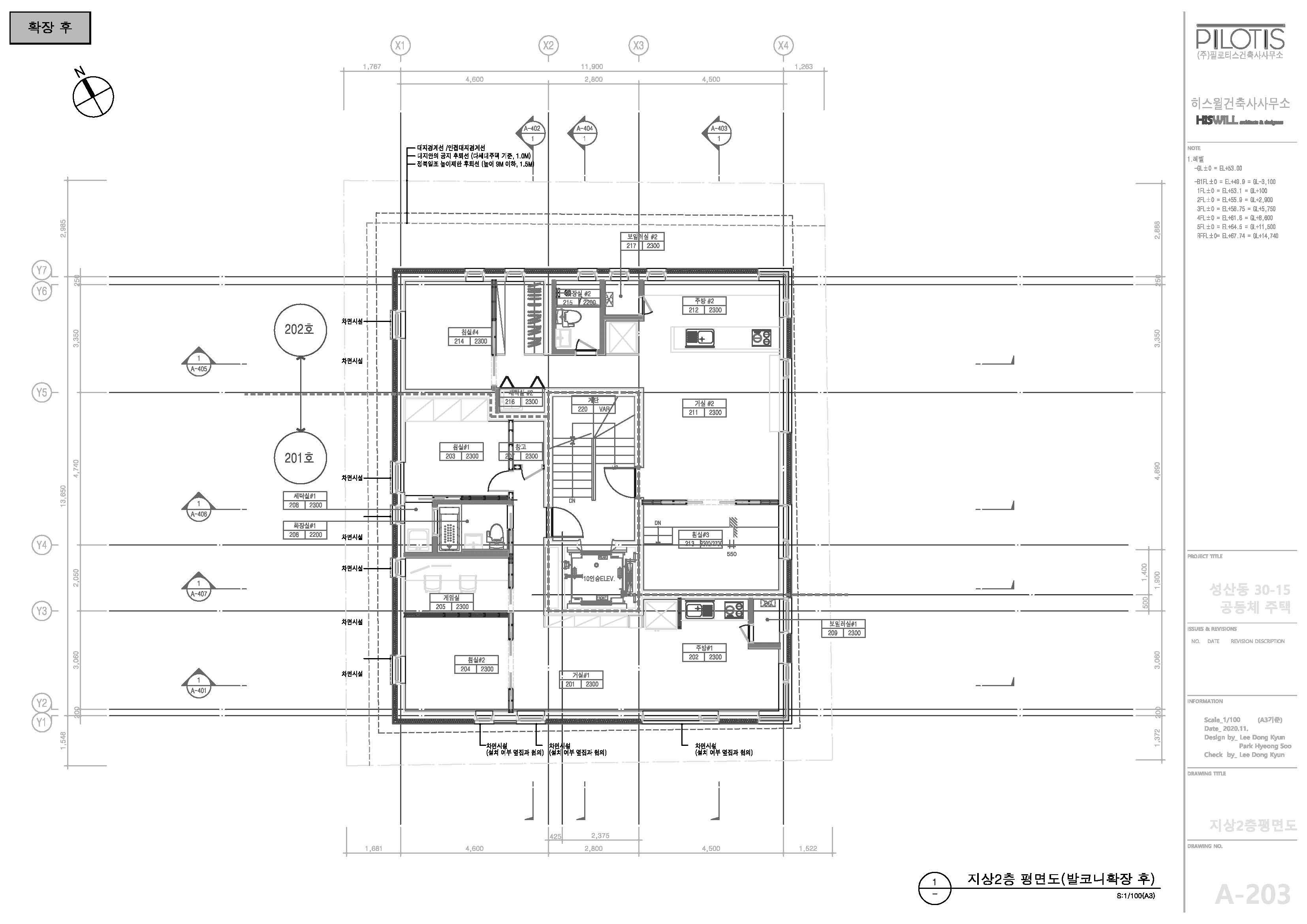
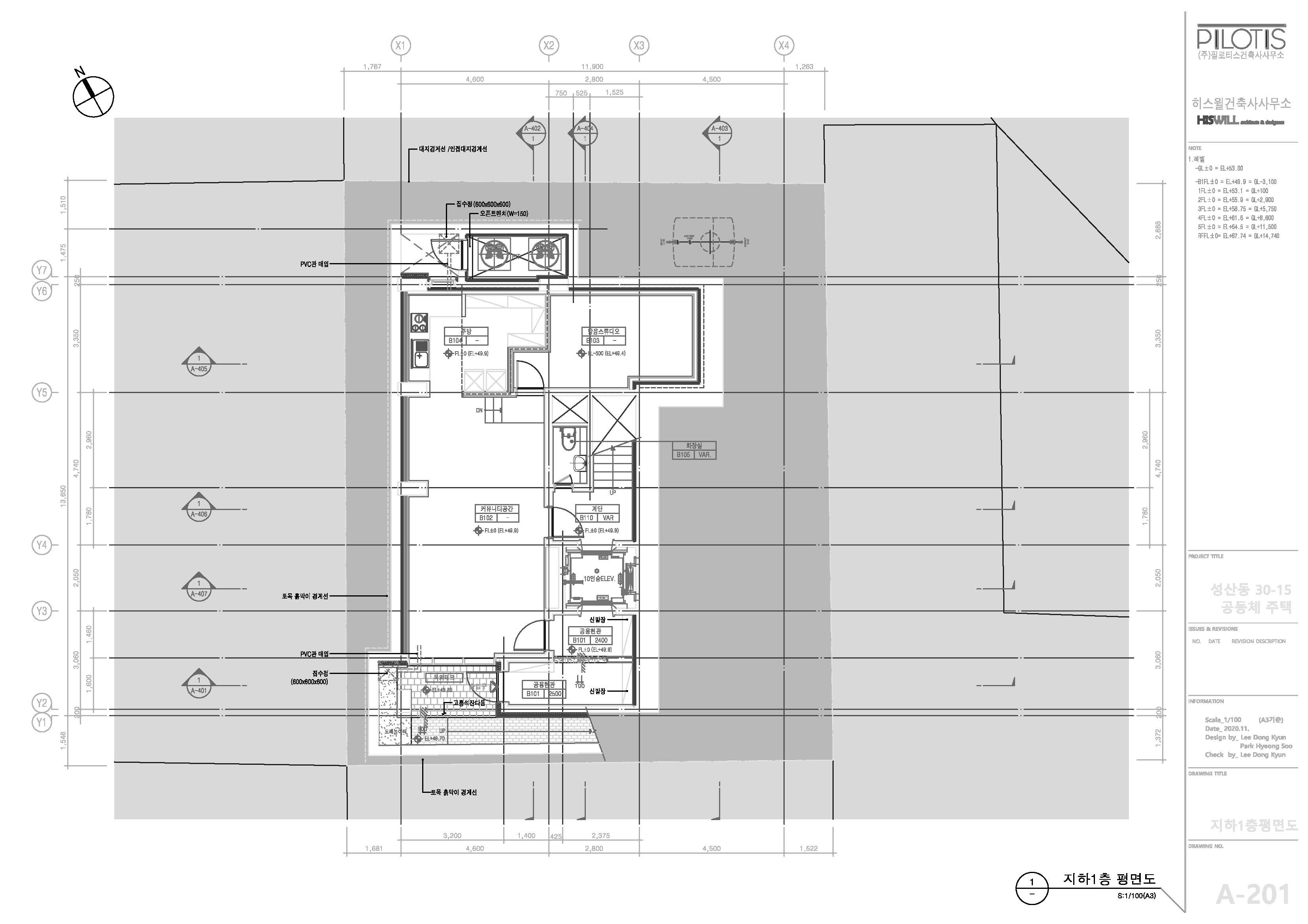
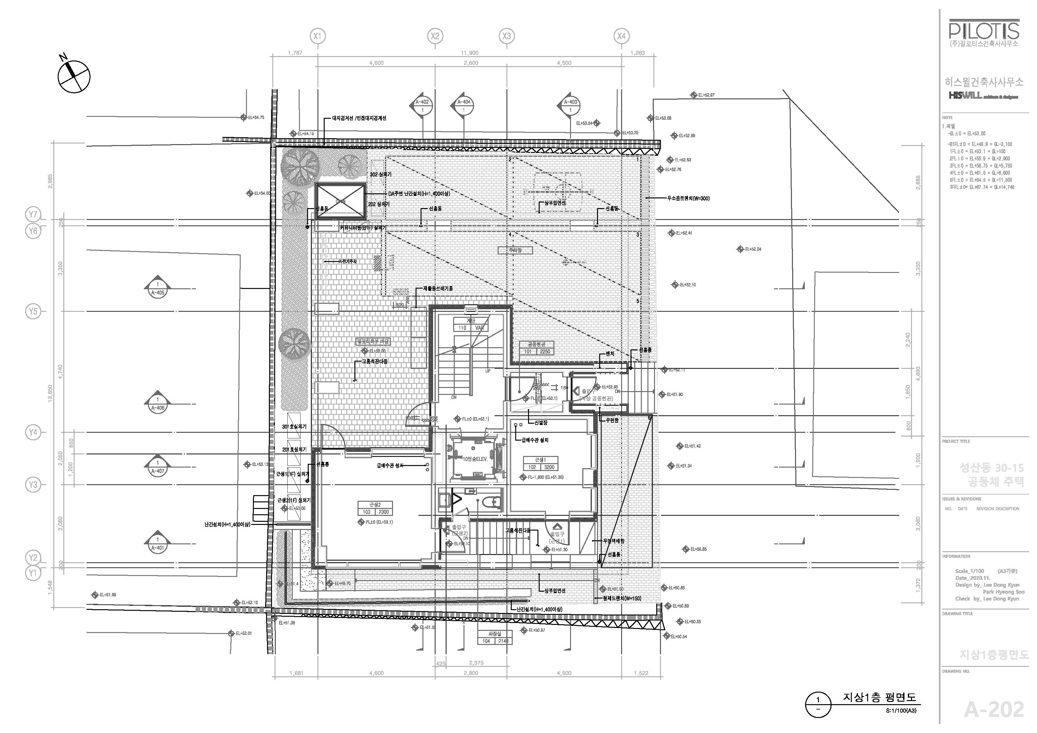
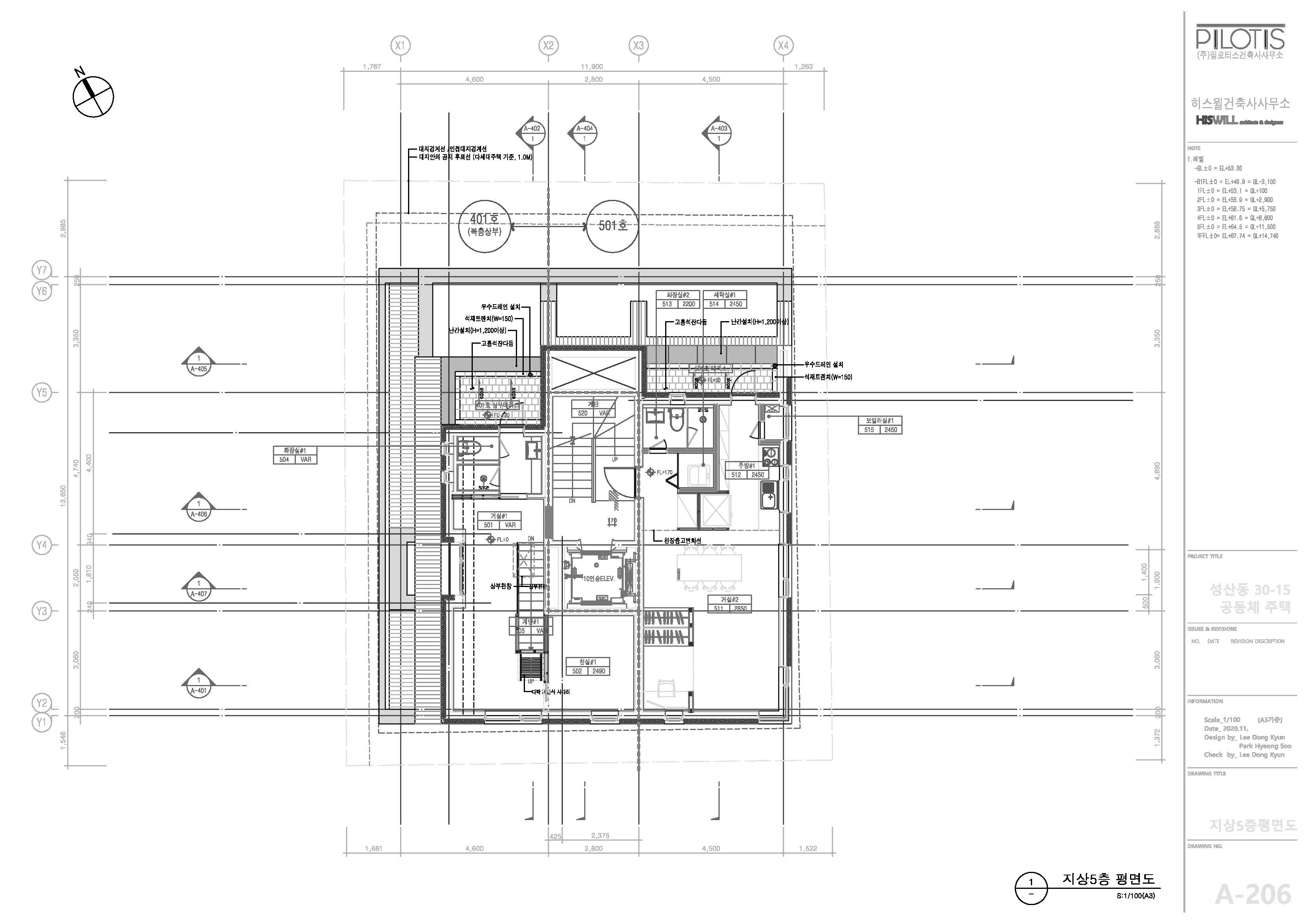
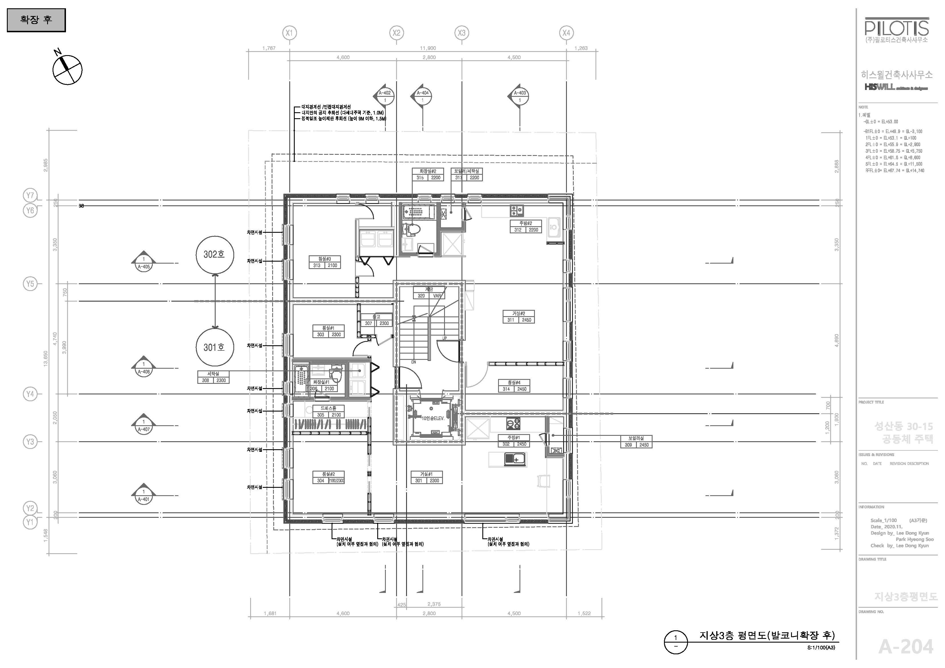
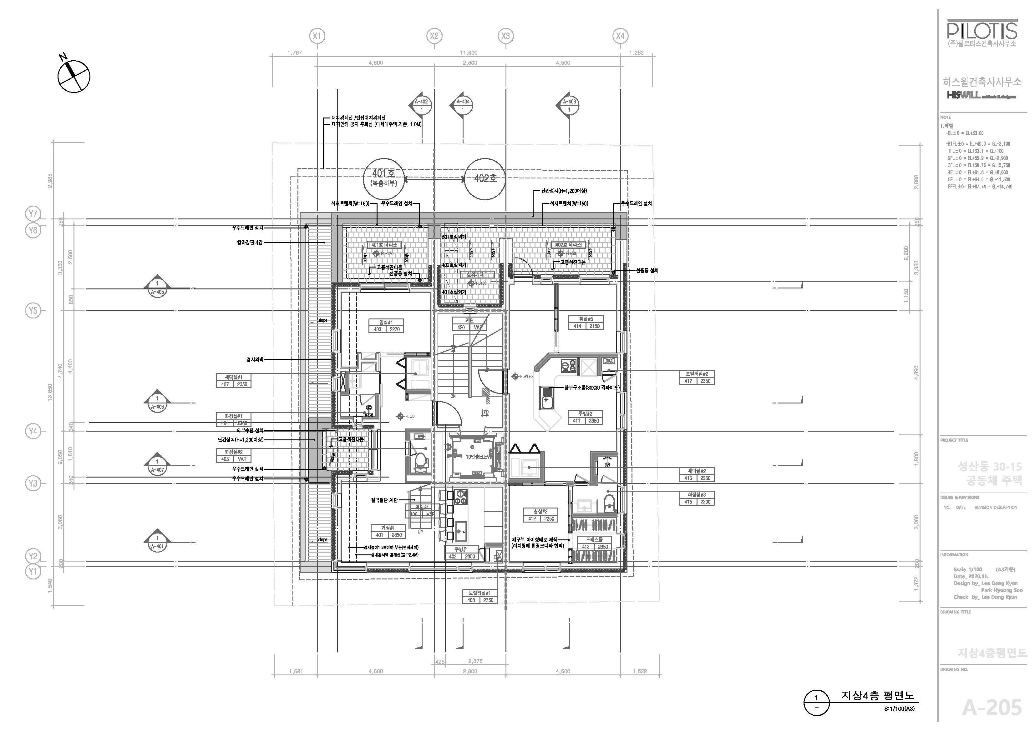
평면도

온음공동체주택_평면도_24
온음공동체주택_평면도_25
온음공동체주택_평면도_26
온음공동체주택_평면도_27
온음공동체주택_평면도_28
온음공동체주택_평면도_29

입주현황

방이름, 입주타입, 면적, 보증금, 월임대료, 관리비, 층, 호, 인원, 입주가능일, 입주가능여부가 포함된 입주현황 표
방이름 입주타입 면적 보증금 월임대료 관리비 인원 입주가능일 입주가능
201 기타 85m² 404,100,000원 0원 300,000원 2 1 3 입주불가능
202 기타 85.3m² 413,100,000원 0원 300,000원 2 2 4 입주불가능
301 기타 87.16m² 398,200,000원 0원 300,000원 3 1 4 입주불가능
302 기타 84.08m² 403,600,000원 0원 300,000원 3 2 4 입주불가능
401 기타 124.11m² 479,200,000원 0원 300,000원 4 1 5 입주불가능
402 기타 74.56m² 303,900,000원 0원 300,000원 4 2 4 입주불가능
501 기타 65.24m² 254,700,000원 0원 300,000원 5 1 2 입주불가능

위치

편의시설

  • 지하철 정보

    6호선 망원역
    6호선 마포구청역

  • 버스 정보

  • 주변 마트 정보
  • 주변 병원 정보소아과/내과/신겨외과/치과 등
  • 주변 학교 정보성서초/성서중/홍대부속초/홍대부속여고
  • 주변 시설 정보
  • 주변 카페 정보
최종수정일: 2023-12-14

사업자소개

    • 상호 : (주)소행주

      대표자 : 류현수

      대표전화 : 02-337-0264

    • 주소 : 서울특별시 종로구 대학로13 (효제동) 6층 03129

    • 이메일 : sohengju@gmail.com

      카카오톡 :