바로가기 메뉴
본문 바로가기
주메뉴 바로가기

SITEMAP

비투코하우징홍은

#인증통과 #청년형 #취미형


비투코하우징 홍은 입주자 모두가 즐거운 모임활동을 통해 느슨한 유대관계릏 맺고 집에오면 정서적 안정감을 느끼고자 합니다.
그러기 위해 건축물 부터 '즐거운 나의집'이 되기위한 노력을 했습니다.

첫째 가장 큰 차별화는 일반적인 네모 형태의 탈피입니다. 순환하기도 오르내리기도
하는 동선구조를 통해 훨씬 더 다양하고 입체적인 공간경험을 하게 됩니다.

둘째 공용공간이 일반적인 형태의 좁고 답답한 복도가 아닌 정원이 있는 외부 테라스와 같은 형태 입니다.

셋째 시작부터 집에 대한 개념이 달랐던 만큼 최대로 실수요 면적을 뽑겠다는 시도가 아닌 작아도 쾌적하고 아름다운 집을
지어보겠다는 의도 였기에 확연히 차별화된 1인가구 주택이 완성 되었다.

  • 건물외관

상세소개

    • 주소 : 서울 서대문구 증가로4길 57 2,3,4,5층

      입주대상 : 제한없음

      주거형태 : 다세대주택

    • 면적 : 전용 431.9m² / 공용 371.9m²

      총 주거인원(총 호 / 총 실) : 총 7명 / 총 7호 / 총 7실

      주택유형 : 원룸(오픈형)

    • 보증금 : 20,000,000원 ~ 29,000,000원

      월세 : 390,000원 ~ 1,380,000원

      홈페이지 :

평면도

비투코하우징홍은_평면도_1
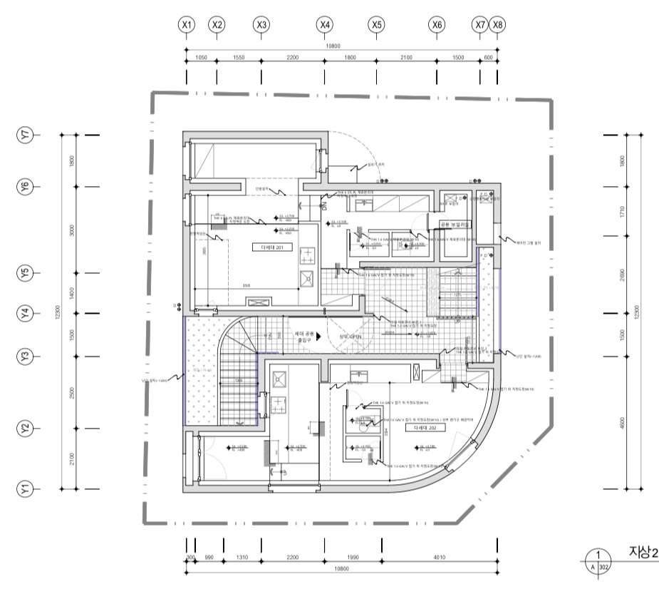
비투코하우징홍은_평면도_2
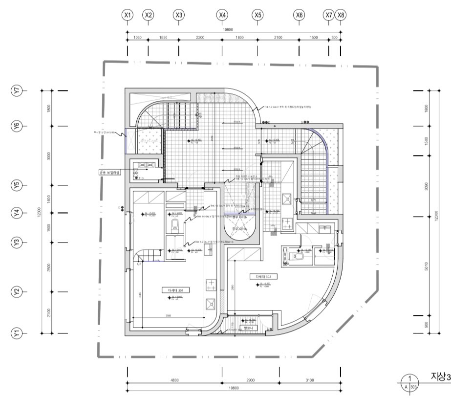
비투코하우징홍은_평면도_3
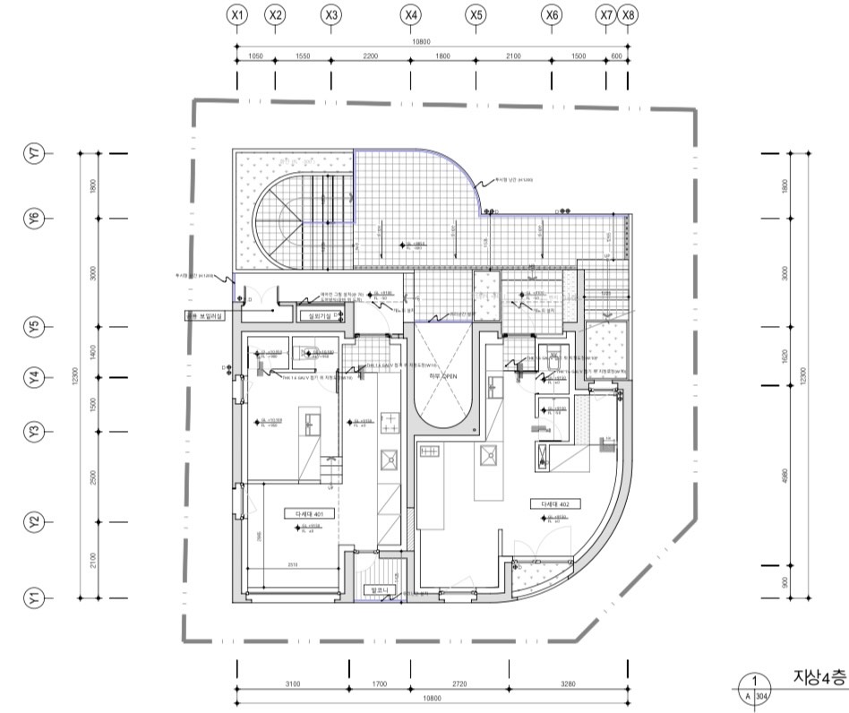
비투코하우징홍은_평면도_4
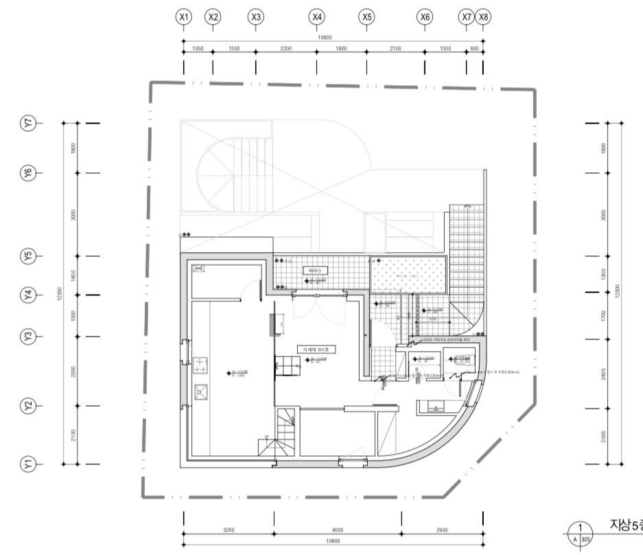
비투코하우징홍은_평면도_5

입주현황

방이름, 입주타입, 면적, 보증금, 월임대료, 관리비, 층, 호, 인원, 입주가능일, 입주가능여부가 포함된 입주현황 표
방이름 입주타입 면적 보증금 월임대료 관리비 인원 입주가능일 입주가능
201 1인1실 32.96m² 5,500원 76원 8원 2 1 1 2023.12.01 입주불가능
202 1인1실 30.8m² 20,900원 0원 8원 2 2 1 2023.12.01 입주불가능
301 1인1실 28.75m² 15,000원 23원 8원 3 1 1 2023.12.01 입주불가능
302 1인1실 26.8m² 10,000원 40원 8원 3 2 1 2023.12.01 입주불가능
401 1인1실 27.3m² 10,000원 42원 8원 4 1 1 2023.12.01 입주불가능
402 1인1실 26.4m² 10,000원 39원 8원 4 2 1 2023.12.01 입주불가능
501 1인1실 49.8m² 2,000원 138원 8원 5 1 1 2023.12.01 입주불가능

위치

편의시설

  • 지하철 정보

    3호선 홍제역

  • 버스 정보

    7713. 7021

  • 주변 마트 정보CU.
  • 주변 병원 정보세브란스병원
  • 주변 학교 정보명지대학교
  • 주변 시설 정보
  • 주변 카페 정보
최종수정일: 2024-07-12

사업자소개

    • 상호 : 비투코하우징홍은

      대표자 : 변재희

      대표전화 : 010-8955-5402

    • 주소 : 서울 종로구 동숭3길 6-6 4층 03085

    • 이메일 : jaeheeb@gmail.com

      카카오톡 :